Nakon dugogodišnjeg rada u javnom sektoru odlučila sam pokrenuti svoju poduzetničku priču što se pokazalo ispravnim. Moj ured se nalazi u Otoku, prekrasnom naselju u Grudama, u kući koja je izgrađena 1911. godine, i mogu reći da je jako specifičan i ugodan.
Kroz poslovanje nastojimo biti podrška investitoru od ideje do realizacije i nudimo širok spektar usluga:




S vremenom smo proširili poslovanje i otvorili Agenciju AZ Nekretnine, koja se bavi posredovanjem pri prodaji, kupnji i investiranju u objekte i zemljišta.
Najveći izazov trenutno nam je prodaja objekta od 5100 m2 u Međugorju. Izvrsna prilika za ulaganje u mjestu gdje je posebno razvijen vjerski turizam.

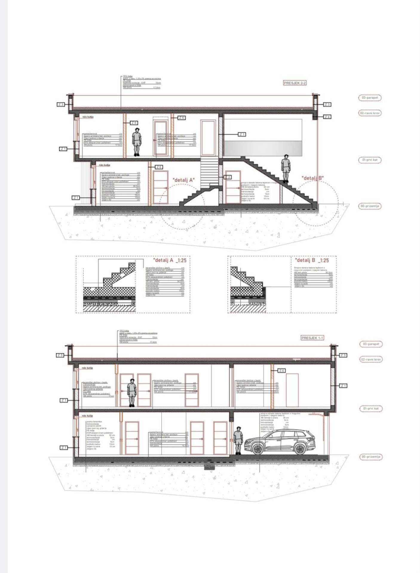
Prvi smo na našim područjima počeli primjenjivati 3D lasersko snimanje. Tehnologija koja mijenja način rada, donosi efikasnost, preciznost i digitalnu transformaciju. Posebno se pokazala izvrsnom pri rekonstrukcijama objekata kulturne baštine.

Konstantno se educiramo i ulažemo u softversku i uredsku opremu. Nastojimo biti dostupni i otvoreni za razgovor jer znamo koliko je važno da se klijent osjeća sigurno u svakoj fazi gradnje. Kvalitetan i stručan kadar garantira kvalitetnu gradnju.
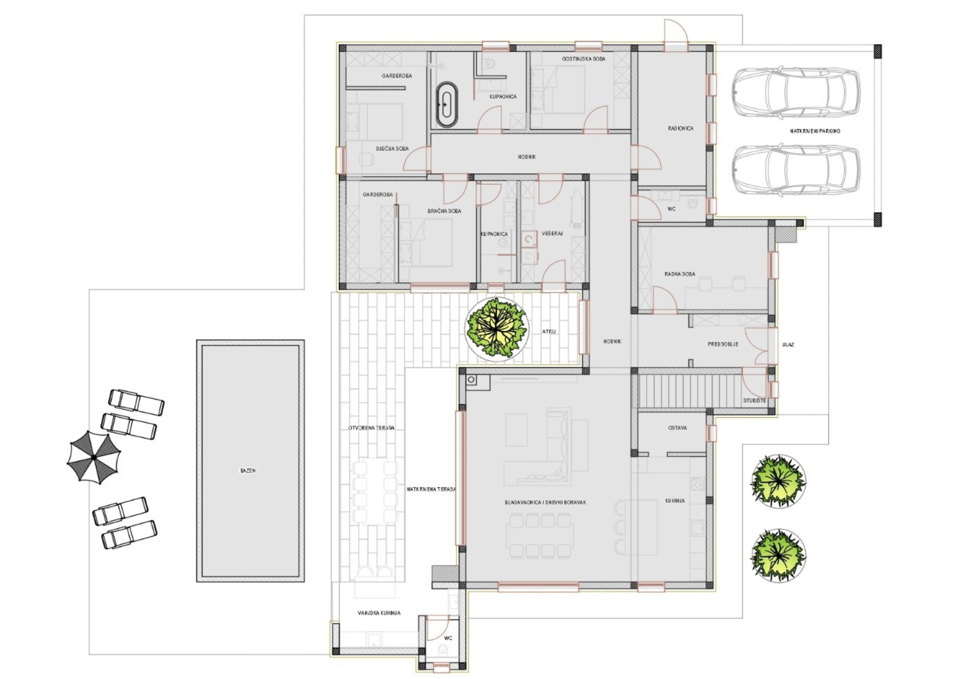
Imamo sve više zahtjeva za projekte rekonstrukcija starih kamenih kuća. Rado sudjelujemo u tim projektima ali moram priznati da donose velik broj izazova i zahtijevaju strpljenje i posvećenosti detaljima.
Jedan od takvih primjera je kamena kuća u Kongori, općina Grude.



TAGOVI: |
| Vaše ime | |
| Komentar | |